CN

Air-cooled Chiller Series

TCO-A air-cooled box-type chiller series The air-cooled type adopts fin-type condenser, which has fast heat conduction a...

Online HotLine:0512-66106021-3

Product Features

1. Adopt high-efficiency imported brand semi-hermetic screw compressor, reliable operation, high efficiency, simple maintenance, precise capacity control, low vibration and low noise.


2. The imported well-known refrigeration parts are used, and the quality is high to ensure the continuous efficient and stable operation of the unit.


3. Adopt imported controller, touch screen man-machine interface, automatic temperature control system, with automatic loading, unloading, timing shutdown and recording failure reasons and other functions.


4. The use of polar or non-polar energy control ensures that the unit can play an energy-saving effect under any load.


5. This series of optional remote monitoring function, easy to achieve remote operation.


6. This series of chillers can be customized with acid and alkali resistant type.


7. This series of chillers can be customized as ultra-low temperature type.


8. Different types of refrigerants are available: R22, R134A, R407C, R404A.


Product Details




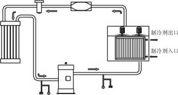
work flow chart



Working principle diagram of air-cooled box-type chiller


 


safety protection system


?Power phase loss and reverse phase protection and indicator light


?Total leakage protection switch


?Fan overload protection and indicator light


?Pump reverse protection and indicator light


?Compressor reverse protection and indicator light


?Pump overload protection and indicator light


?Compressor overload protection and indicator light


? Heat sink high voltage protection and indicator light


?Compressor low pressure protection and indicator light


?Compressor ice protection


?Compressor start delay safety device


Product Parameter